Estilo de ferro, essência de compósito de alto desempenho. Design impecável e resistência excepcional para os apartamentos de luxo Fasano — sem preocupação com manutenção, mesmo diante da maresia.
Arquiteto: Philippe Starck
Construtora: Prêmio
Data: 2006
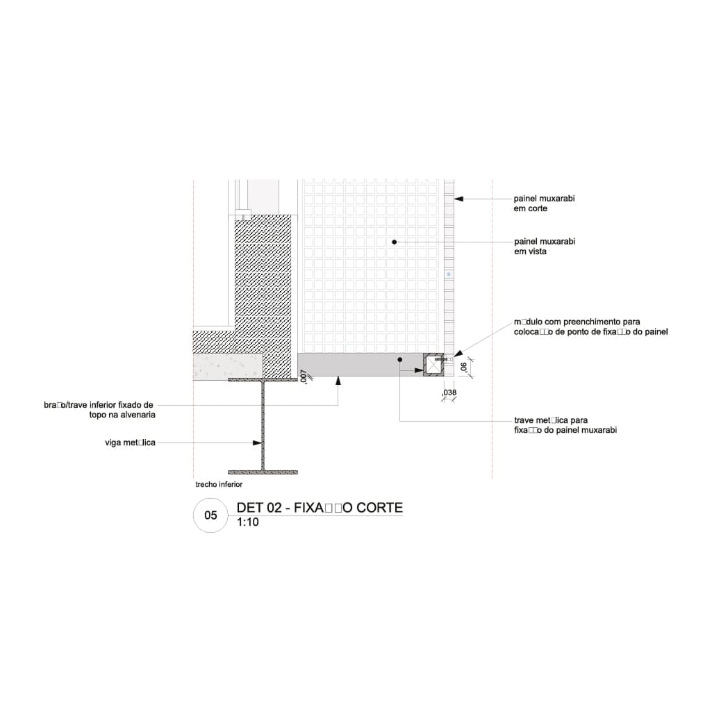
Desenvolvido por Philippe Starck e produzido em compósito de alto desempenho, o muxarabi combina elegância, durabilidade e resistência total à corrosão, destacando-se na fachada do empreendimento à beira-mar.
Arquiteto: Philippe Starck
Construtora: RJZ Cyrela
Data: 2023
Os perfis da fachada foram um desafio à parte. Como manter o charme e a sofisticação do projeto sem utilizar parafusos, que poderiam comprometer a estética ao longo do tempo? A solução foi inovadora e elegante: as vigas de adorno foram fixadas exclusivamente com cola, garantindo um acabamento limpo, discreto e duradouro.
Cité Arquitetura: Fernando Costa e Celso Rayol
Construtora: RJZ Cyrela
Data: 2019
Perfis de acabamento que reproduzem a estética das vigas de aço, com resistência total à corrosão, garantindo durabilidade e sofisticação.
Construtora: SIG
Reconstruir uma casa em um terreno sujeito à maresia constante, sem possibilidade de guincho, foi um desafio que exigiu leveza e inovação. Vigas, guarda-corpos e postes foram desenvolvidos em compósitos de alto desempenho, garantindo resistência e longevidade mesmo nas condições mais extremas.
Arquiteto: Felipe Lobão
Data: 2019
Revestimento com a leveza e durabilidade dos compósitos, oferecendo isolamento térmico e acústico e sustentação ideal para os lambris de madeira.
Construtora: Mozak
Arquiteto: Ivan Rezende
Data: 2020
Superando limites: Nosso maior vão, com 10 metros! Engenharia e inovação unidas para criar essa passarela única e desafiadora.
Arquiteto: Carlos Cruz
Um projeto desafiador, onde nossos perfis de adorno e estruturais ganharam destaque em uma construção de múltiplos andares.
Arquiteta: Alessandra Lima
Construtora: CEU
Data: 2022
Um dos desafios enfrentados em parceria com a Comlurb foi eliminar os custos recorrentes de manutenção dos gradis nos postos de salvamento das praias do Rio de Janeiro. A solução buscou combinar durabilidade, resistência às condições adversas do ambiente praiano e eficiência, garantindo economia e funcionalidade a longo prazo.
Comparação com o AçoAntes & Depois
Data: 2006
Passarelas e pontes que permanecem novas ao longo dos anos. O segredo está na substituição dos guarda-corpos por compósitos de alto desempenho, garantindo durabilidade, resistência e aparência impecável, mesmo sob maresia e intempéries.
Comparativo com o açoAntes e Depois
Data: 2015
Desenvolvemos o maior beiral em compósito de alto desempenho, com telhas pultrudadas que oferecem leveza, resistência e precisão construtiva — uma solução alinhada às necessidades do projeto.
Arquiteto: Gui Mattos
Data: 2025
Muxarabi branco. Onde o robusto ganha elegância e exclusividade, e a luz se transforma em privacidade.
Arquiteto: BERNARDES ARQUITETURA
Data: 2022

Inovamos com ripados para uso externo, feitos até com tampinhas de garrafa de refrigerante! Além de sustentáveis, oferecem beleza e proteção térmica e acústica para suas áreas de piscina.
Arquiteto: LÉO SHEHTMAN
Data: 2021

Decks e saias de deck feitos com ripas de madeira plástica: uma inovação que trouxemos para o Brasil em 2000. Durável, prática e funcional, essa "madeira" não apodrece, não precisa de pintura e não acumula craca como a madeira convencional.